PGL系列喷雾干燥制粒机
产品概述
本机组是一种可以同时完成干燥和造粒的装置。按工艺要求可以调节料液泵的压力、流量、喷孔的大小,得到所需的按一定大小比例的球形颗粒。
本机组工作过程为料液通过隔膜泵高压输入,喷出雾状液滴,然后同热空气并流下降,大部分粉粒由塔底排料口收集,废气及其微小粉末经旋风分离器分离,废气由抽风机排出,粉末由设在旋风分离器下端的授粉筒收集,风机出口还可装备二级除尘装置,回收率在96-98%以上。
本机组与物料接触部分的塔体、管道、分离器的材料,均采用SUS304制作。在塔体内部与外壳之间有足够的保湿层,填充材料为超细玻璃棉,塔体设有观察门、视镜、光源及控制仪表,由电器控制操作台控制和显示。
产品应用
制药工业:片剂、冲剂、胶囊剂颗粒;低糖、无糖的中成药颗粒; 食品:可可、咖啡、奶粉、颗粒果汁、调味品等; 其它行业:农药、饲料、化肥、颜料、染料等。
产品特点
1、干燥速度快,料液经雾化后表面积大大增加,在热风气流中,瞬间就可蒸发95%-98%的水份,完成干燥的时间仅需要十几秒到数十秒种,特别适用于热敏性物料的干燥。
2、所有产品为球状颗粒,粒度均匀,流动性好,溶解性好,产品纯度高,质量好。
3、使用范围广,根据物料的特性,可以用热风干燥, 也可以用冷风造粒,对物料的适应性强。
4、操作简单稳定,控制方便,容易实现自动化作业。
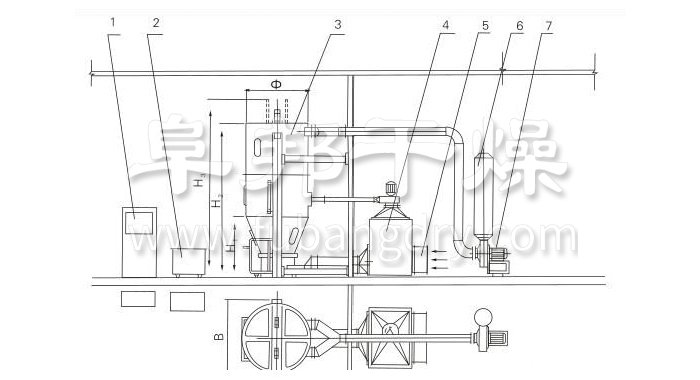
结构示意图
1、控制柜 2、输液小车 3、主机 4、换热柜 5、亚高效过滤器 6、消声器 7、引风机
技术参数
| 项 目 | 单位/机型 | PGL-3B | PGL-5B | PGL-10B | PGL-20B | PGL-30B | PGL-80B | PGL-120B | |
| 流浸膏 | min | kg/h | 2 | 4 | 5 | 10 | 20 | 60 | 100 |
| max | kg/h | 4 | 6 | 15 | 30 | 40 | 100 | 140 | |
| 沸腾能力 | min | kg/批 | 2 | 6 | 10 | 30 | 60 | 100 | 150 |
| max | kg/批 | 6 | 15 | 30 | 80 | 160 | 250 | 450 | |
| 液体比重 | kg/L | ≤1.30 | |||||||
| 原料容器量 | L | 26 | 50 | 220 | 420 | 620 | 980 | 1600 | |
| 容器直径 | mm | 400 | 550 | 770 | 1000 | 1200 | 1400 | 1600 | |
| 引风机功率 | kw | 3.0 | 5.5 | 7.5 | 11 | 15 | 18.5 | 30 | |
| 辅风机功率 | kw | 0.35 | 0.75 | 0.75 | 1.20 | 2.20 | 2.20 | 4 | |
| 蒸汽 | 耗量 | kg/h | 40 | 70 | 99 | 210 | 300 | 366 | 465 |
| 压力 | Mpa | 0.40-0.60 | |||||||
| 电热型功率 | kw | 9 | 15 | 21 | 25.5 | 51.5 | 60 | 75 | |
| 压缩空气 | 耗量 | m3/min | 0.5 | 0.8 | 0.8 | 0.9 | 1.1 | 1.3 | 1.8 |
| 压力 | Mpa | 0.40-0.60 | |||||||
| 作业温度 | °C | 室温-160°C自动调节 | |||||||
| 产品水份 | % | ≥0.2 | |||||||
| 物料收得率 | % | ≥99 | |||||||
| 设备噪音 | dB | <77 | |||||||
| 主机尺寸 | Φ | mm | 400 | 550 | 770 | 1000 | 1200 | 1400 | 1600 |
| H1 | mm | 940 | 1050 | 1070 | 1220 | 1570 | 1590 | 1690 | |
| H2 | mm | 1900 | 2360 | 2680 | 3150 | 3630 | 4120 | 5050 | |
| H3 | mm | 2050 | 2590 | 3020 | 3600 | 4180 | 4770 | 5800 | |
| B | mm | 740 | 890 | 1110 | 1420 | 1620 | 1820 | 2100 | |
选型例:要求每批次处理流浸膏量 I=120kg(含固量为30%)、种子量II=60kg,可由I、II得出理论成品量 M=mI+mII=120kgx30%+60kg=96kg,工作时间T=120kg/30kg/h=4h,技术参数栏中可查出沸腾量为标准载荷范围,故以每班完成两个批次,选用PGL-30型较为适宜。
- 2019-01-12 > 碳酸钙行业用高效混合制粒机发展现状与特点
- 2025-09-18 > WF-20B30B40B60b除尘粉碎机 齿盘式粉碎机高速打粉机 锤式粉碎机 超微粉碎机 中药材脉冲除尘式粉碎机
- 2025-06-27 > 沸腾制粒干燥机使用注意事项
- 2024-11-13 > 200型喷雾干燥机完工发货
- 2024-11-11 > 沸腾制粒干燥机
- 2024-10-14 > 猫砂颗粒旋转制粒机
- 2024-09-12 > 三维混合机
- 2024-09-11 > 方形真空干燥机 立式不锈钢食品干燥箱 脆性猪肉铺烘干箱
- 2024-05-14 > 高速混合机
- 2024-05-14 > yk160摇摆颗粒机 化工原料粉末造粒机 冰糖红糖结块结团物料破碎颗粒机



